ПОЗВОНИТЬ ВАМ?
53. ДАЧНЫЙ ЛЕТНИЙ ДОМ "Дача вдохновения" ПРОЕКТ #46С21

748 000 ₽ 696 000 ₽


Характеристики
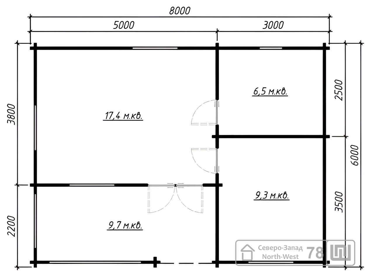
Общая площадь — 42,9 М²

Размеры строения — 8 х 6 М
Площадь террас и балконов — 9,7 М²

Стеновой материал
Профилированный брус камерной суши — 45х145 или 70х145 мм
Заказать

✔️ Комплектация и любые изменения в проекте могут быть внесены по желанию заказчика

комплектация

базовая

  • ✅ Стены – сухой профилированный брус 45х145 мм
  • ✅ Стены – сухой профилированный брус 70х145 мм +193 000 ₽
  • ✅ Обвязка – брус 150х100 с антисептированием
  • ✅ Лаги перекрытий – брус 50х150 с антисептированием
  • ✅ Напольное покрытие – половой сухой шпунт 36 мм
  • ✅ Кровля – имитатор бруса 21 мм
  • ✅ Двери – массив (сосна), входная металлическая
  • ✅ Оконные блоки – стеклопакеты
  • Сроки строительства:

    ✔ 1 - 3 дней изготовление домокомплекта на производстве (в сезон от 2 недель)
    ✔ 1 день установка фундамента
    ✔ 1 - 2 ДНЕЙ сборка на участке
Дополнительно


  • 🔶 Монтаж на участке заказчика — 174 000 ₽
  • 🔶 Доставка – рассчитывается отдельно
  • Также можно заказать:
  • 🔷 Фундамент – блочный, свайный, свайно-винтовой
  • 🔷 Кровля – металлочерепица, битумная черепица
  • 🔷 Утепление – полы, потолки, стены
  • 🔷 Водосточная система
  • 🔷 Покраска