ПОЗВОНИТЬ ВАМ?
122. коттедж из двойного буса "Зеленый Уголок" проект #47Д08

от 4 967 800 


Характеристики
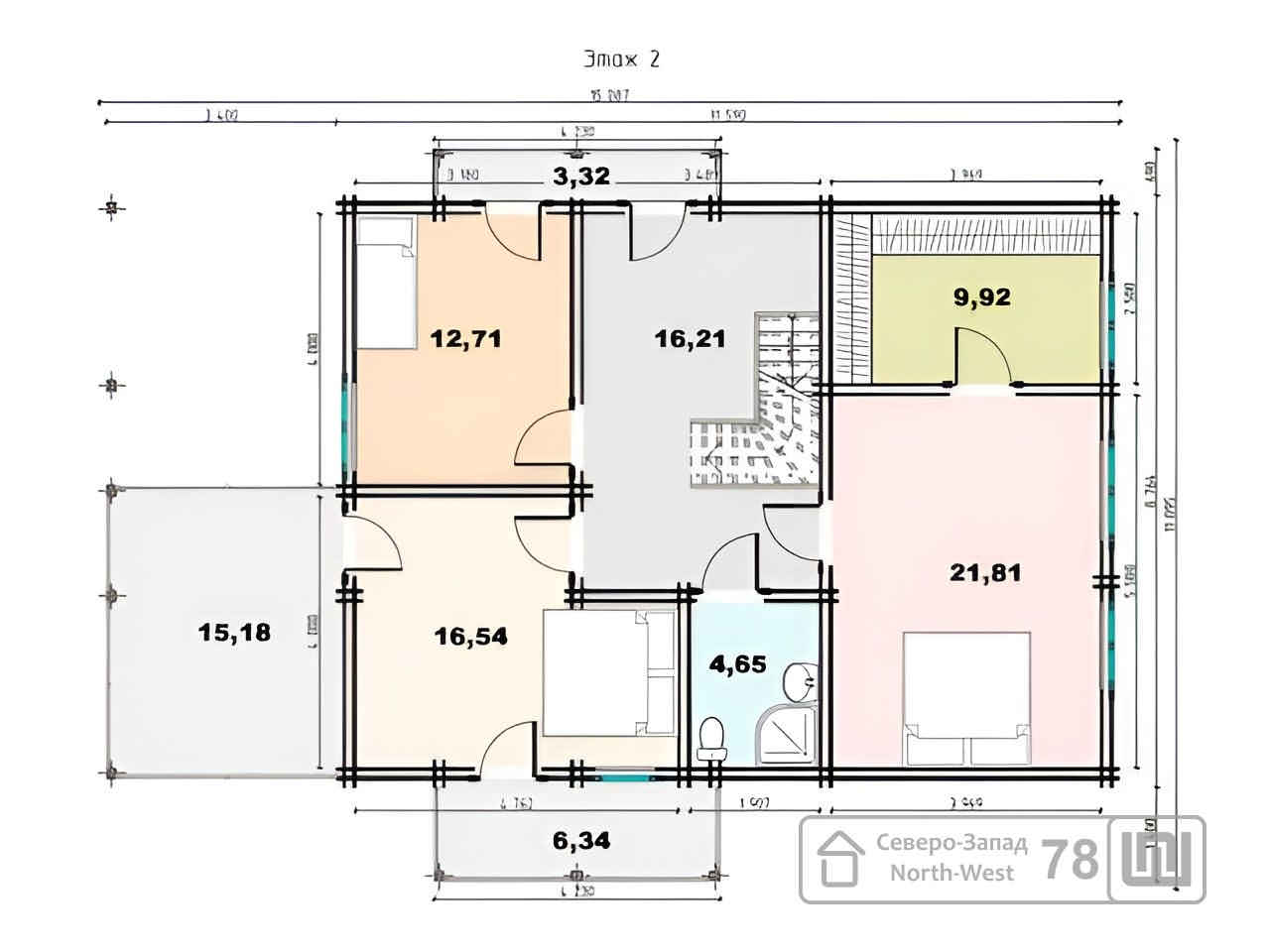
Общая площадь — 264 М²

Размеры строения — 15 Х 10,9 М
Площадь террас и балконов — 36 М²

Стеновой материал
Двойной профилированный брус камерной суши — 45х145 или 70х145 мм
Толщина стены с утеплителем — 190 или 240 мм
Заказать

✔️ Комплектация и любые изменения в проекте могут быть внесены по желанию заказчика

Комплектации


Домокомплект

  • Стеновой комплект - брус сечением 45х140 мм или 70х135 мм. Двойной профилированный брус камерной сушки, влажность 10-12%, в соответствии с проектной документацией
  • Двойной обвязочный брус 200х100мм
  • Лаги пола, размер 50х200 мм, установленные на расстоянии не более 600 мм
  • Межэтажные перекрытия 50х200мм
  • Стропильная система - 50*200 мм
  • Направляющие внутри стен, в дверные и оконные проёмы из доски 50х100мм
  • Несущие столбы и балки
  • Крепеж и расходные материалы
  • Проектно-сборочная документация
  • Упаковка домокомплекта

Стоимость домокомплекта: от 13 900 /м2 (в зависимости от проекта)

Стандарт

  • Состав «Домокомплект»
  • Утепление межстенного пространства - Эковата 100 мм
  • Утепление кровли – плитный утеплитель каменно-базальтовая “Paroc” толщиной 200 мм или аналог.
  • Обрешетка – 25х100
  • Контробрешетка – 50х50 мм
  • Кровельное покрытие – металлочерепица “Grand Line” (цвет на выбор). Возможна замена на мягкую битумную черепицу “Shinglas”
  • Окна металлопластиковые, двухкамерные стеклопакеты, (белые)
  • Балконные двери - металлопластиковые
  • Входная дверь – металлическая
  • Полы на террасах - террасная доска "вельвет"
  • Ограждение на террасах и балконах
  • Строительные и монтажные работы

Стоимость варианта «стандарт»: от 22 600 /м2

Комфорт

  • Состав «Стандарт».
  • Фундамент – свайный ж/б фундамент или свайно-винтовойd-108мм
  • Утепление пола 1-го этажа – Эковата, толщиной 200 мм
  • Утепление пола 2-го этажа – Эковата, толщиной 150 мм
  • Черновой пол из нестроганой доски 25х100мм
  • Чистовой пол - Quick Deck Professional 22мм
  • Откосы и наличники снаружи в оконные проемы
  • Окрашивание стен, торцов и декоративных элементов дома снаружи

Стоимость варианта «комфорт»: от 28 400 /м2

Дополнительно

  • Электромонтажные работы
  • Инженерно-сантехнические работы
  • Устройство водосточной системы
  • Устройство локальной канализации

Срок исполнения договора - от 20 до 90 рабочих дней